- Prenájom nehnuteľností
- Obchodné priestory
- Na prenájom elegantné priestory v centre mesta Ružomberok
Na prenájom elegantné priestory v centre mesta Ružomberok
600,- €/mes.
FatraReal ponúka na dlhodobý prenájom elegantné kancelárske priestory v samotnom centre mesta Ružomberok.
Priestory sa nachádzajú na prízemí v novom polyfunkčnom objekte, v blízkosti pešej zóny.
Veľmi zaujímavá poloha a členenie priestorov ponúka všestranné využitie od bežných kancelárií, lekárskej ambulancie, právnickej kancelárie, architektonického ateliéru, predajne, či sídla spoločnosti i mnoho ďalších možností.
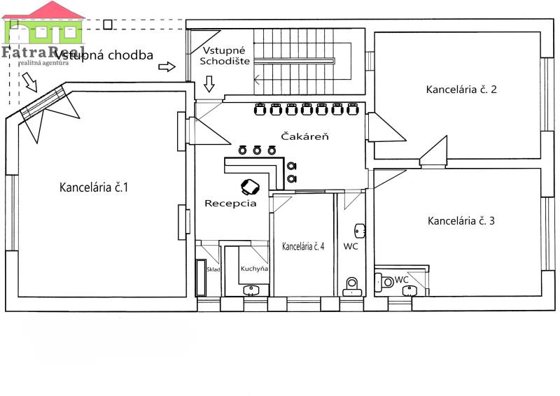
Celková plocha priestorov o veľkosti cca 107 m2 pozostáva z kancelárie č. 1 (45 m2) so samostatným vchodom priamo z ulice a spoločných priestorov (spoločný vchod, recepcia s čakárňou, kancelária č. 4 - zasadačka, kuchynka, WC a sklad), okrem kancelárií č. 2 a 3. - viď pôdorys.
Priestory sú ideálne pre toho, kto preferuje pekné reprezentačné, ale zároveň aj kľudné, čisté a príjemné prostredie v centre mesta pre tvorivú činnosť s veľmi dobrou dostupnosťou pre klientov a dobrou možnosťou parkovania.
V mesačnej cene za prenájom sú zahrnuté už aj náklady za vykurovanie, elektrinu a vodu.
Ostatné vybavenie: vlastné parkovanie pre 1-2 vozidlá, kamerový a zabezpečovací systém, led osvetlenie, bilboard na reklamu pred nehnuteľnosťou, možnosť napojenia na vysokorýchlostný internet.
Priestory sú k dispozícii ihneď alebo po dohode.
Podrobnejšie informácie Vám radi poskytneme telefonicky, e-mailom alebo osobne pri obhliadke nehnuteľnosti. V prípade záujmu nás neváhajte prosím kontaktovať.
Poloha nehnuteľnosti na mape
Podrobné informácie
prízemie
107 m²
osobné
aktívne
áno - separovaný
lokálny poskytovateľ
vlastné vyhradené
Zmiešané
čiastočne
áno
áno
nie
plastové
+421 905 186 606
Slovensko
Ružomberok
Ružomberok
osobné
Obchodné priestory - novostavba
prenájom
- 24. apríl 2026 18:38 hod
- poslať správu
- poslať ponuku na e-mail
- dohodnúť prehliadku objektu
- vytlačiť ponuku
Pre viac informácií kontaktujte
Juraj Surový
Konateľ


Telefón: +421 905 186 606
E-mail: surovy@fatrareal.sk
Obchodné priestory / Ružomberok / Obchodné priestory Ružomberok prenájom